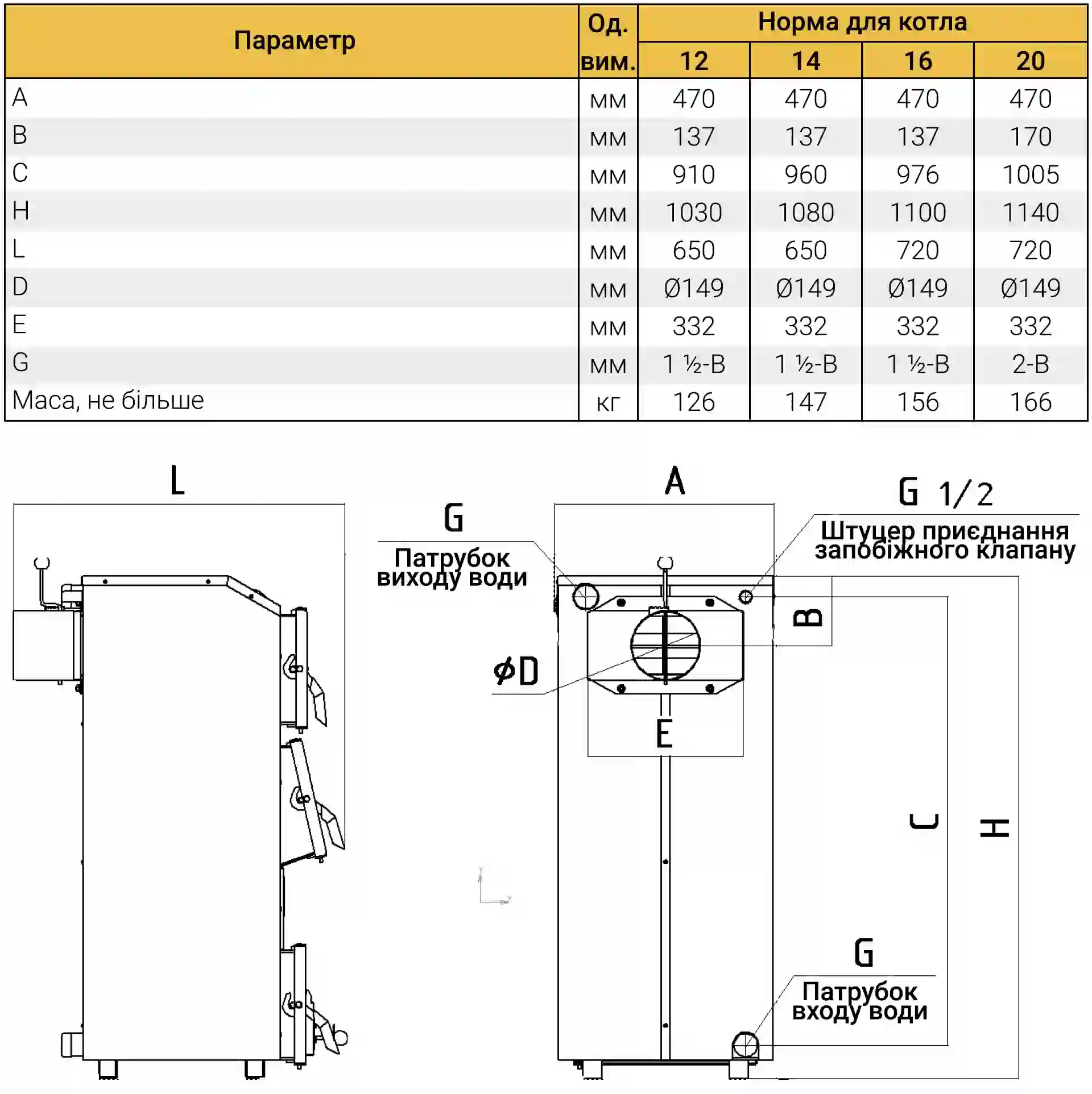
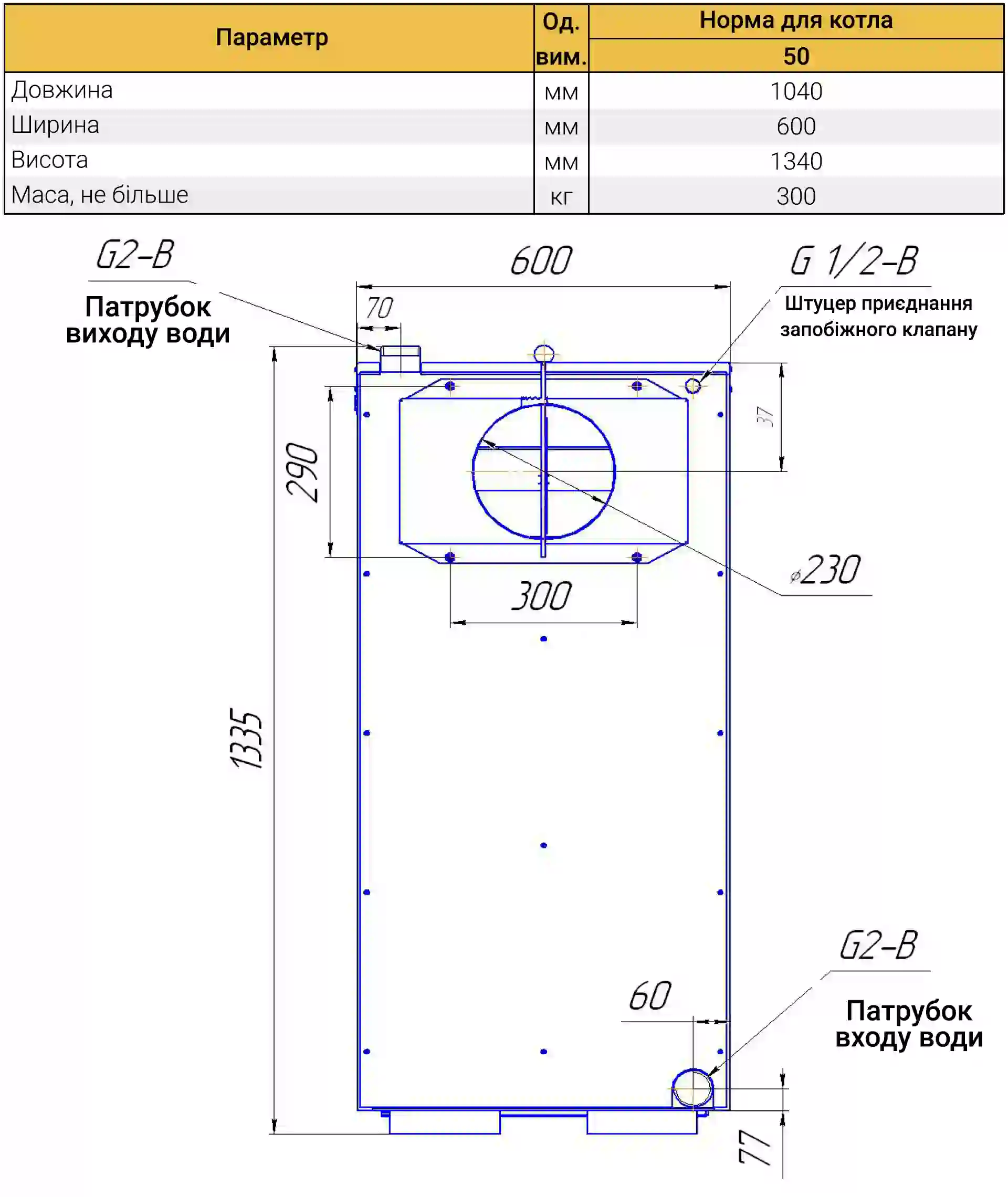
Котел Маяк твердопаливний АОТ STANDART PLUS 12 - 50 кВт



Котел МАЯК АОТ STANDART PLUS - це твердопаливний котел
традиційного горіння з ручним завантаженням і сталевим теплообмінником. Котел
працює в водяних системах опалення відкритого та закритого типу, як з
примусовою, так і природною циркуляцією теплоносія. Даний опалювальний апарат
призначений для роботи на дровах, вугіллі, паливних брикетах, відходах
деревообробки.
Потужностного лінійка: 12, 14, 16, 20, 25, 30 і 50 кВт.
Автоматикою МАЯК ОАТ Стандарт Плюс не укомплектований. Але
має заводську адаптацію під механічний регулятор тяги і блок електронноїавтоматики. Наш магазин пропонує своїм клієнтам доукомплектувати котел будь
автоматикою.
Конструкція котла на твердому паливі Маяк АОТ Стандарт Плюс
Модель Стандарт Плюс має тридверну конструкцію. Корпус котла
теплоізольований. У нижній частині котла знаходиться зольник і водяна решітка,
на якій розпалюється і згоряє паливо. Паливо завантажується через середні двері
в камеру згоряння. Верхні дверцята призначені
для чищення теплообмінника.
Конвекційна частина теплообмінника розташована над камерою
згоряння у вигляді горизонтальних полиць з постійною циркуляцією теплоносія.
Переваги котла твердопаливного МАЯК Standart Plus:
- ККД - 80%;
- Сталь 4 мм;
- Велика топкова камера;
- Похила завантажувальна горловина;
- Водоохолоджуваний колосник;
- Регульовані дверки;
- Адаптація під різні типи автоматики.














