Твердопаливна блочно-модульна котельня MODUFLEX 2500 кВт
Блочно-модульна котельня MODUFLEX: Ефективне опалення потужністю 2500 кВт
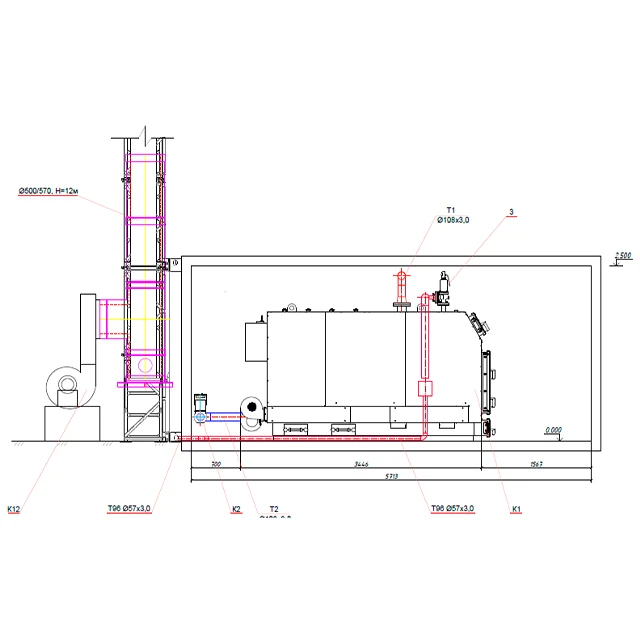
Забезпечення великих об'єктів теплом потребує надійності та автономності. Блочно-модульна котельня MODUFLEX — це повноцінний енергетичний вузол у мобільному корпусі, який дозволяє швидко розв'язати питання опалення промислових підприємств, житлових комплексів або соціальних об'єктів. Ми здійснюємо повний цикл виробництва у власному цеху, що гарантує контроль якості на кожному етапі збірки та повну відповідність технічному завданню замовника.

Модульні котельні власного виробництва: готові рішення під ключ
Замість капітального будівництва ми пропонуємо мобільність та швидкість. Кожна котельна установка збирається як готовий модуль, що проходить тестування ще до відправки на об'єкт. Це дозволяє мінімізувати терміни монтажу та уникнути помилок при пусконалагодженні.
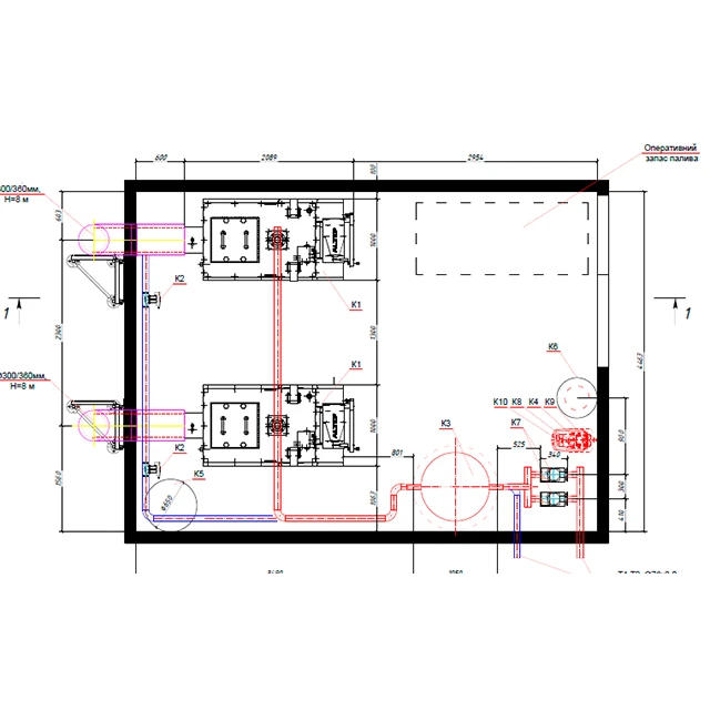
Ми пропонуємо гнучкий підхід до проєктування. Залежно від ваших потреб, система може бути скомпонована за різними схемами:
- Один потужний котел — для стабільного навантаження.
- Каскадна система (1+1 або 2+2) — для підвищення надійності та економії палива в перехідні періоди опалювального сезону.
Такий підхід дозволяє проводити сервісне обслуговування одного модуля без зупинки всієї системи теплопостачання.

Котельні на пелетах та твердому паливі: вибір конфігурації
Сучасні котельні на твердому паливі MODUFLEX адаптуються під доступний ресурс клієнта. Ми проєктуємо об'єкти двох типів:
- Автоматизовані системи — котельні на пелетах або щепі. Завдяки механізованій подачі палива та бункерам великого об'єму, втручання персоналу в роботу системи є мінімальним.
- Ручне завантаження — класичне рішення для спалювання дров або великих фракцій палива, що відрізняється простотою конструкції та енергонезалежністю окремих вузлів.
Комплектація та інженерне наповнення

Блочно-модульна котельня поставляється у повній заводській готовності. Окрім котлів, всередині модуля встановлюється:
- Система водопідготовки та фільтрації.
- Антиконденсаційні вузли та мережеві насоси.
- Системи безпеки, блискавкозахисту та пожежного сповіщення.
- Автоматика керування з можливістю дистанційного моніторингу.
Ви отримуєте не просто обладнання, а готове бізнес-рішення, адаптоване під кліматичні умови та специфіку вашого об’єкта.








