Котел твердопаливний Витязь ЕКО
Оберіть потрібний варіант
-
22 900 грн.
- 25 190 грн.
- Залишилося 12 днів
Твердопаливні котли Витязь ЕКО
Твердопаливні котли Витязь серії ЕКО – якісне та надійне
опалювальне обладнання традиційного класу, виготовлене в Україні. Випускається
із застосуванням передових технологій та якісних комплектуючих, з урахуванням
сучасних вимог до опалювальної техніки. Виробником налагоджено випуск агрегатів
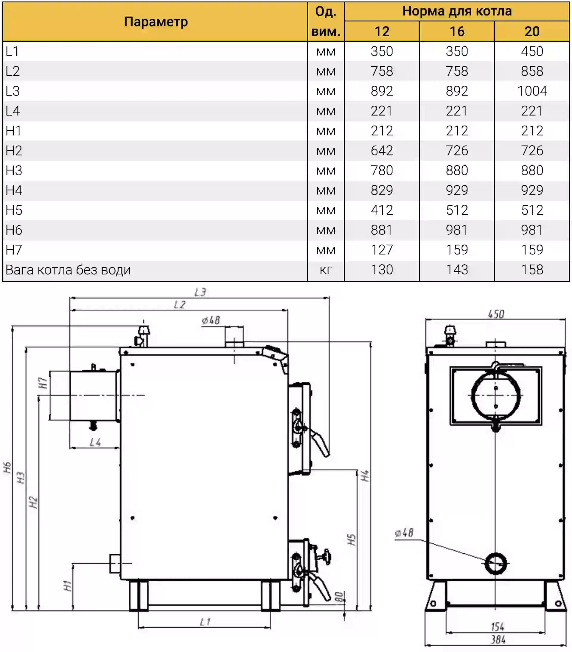
обігріву бюджетної серії Вітязь ЕКО з номінальною потужністю 12, 16, 20 та 24
кВт. Це енергонезалежні моделі, що працюють за рахунок спалювання твердого
палива. Ефективно функціонують при роботі на вугіллі, дровах, відходах
деревообробки та паливних брикетах. Застосовуються для обігріву приміщень
житлового, господарського та виробничого призначення площею до 240 м2.
Експлуатаційні особливості конструкції
Витязь котел лінійки ЕКО розроблений для ручного
завантаження твердого палива. Це збірно-зварювальна конструкція, яка виконана у
формі паралелепіпеда із суцільних сталевих листів із застосуванням
роботизованого зварювання. Металева конструкція зовні утеплена шаром із
мінеральної вати. Такий теплоізолюючий прошарок дозволяє значно знизити теплові
втрати. Зверху корпус котла закриває кожух, який виконує захисну та декоративну
функції.
Котел на дровах Витязь ЕКО обладнаний об'ємною камерою
згоряння. Наявність місткої топки дозволяє завантажувати більшу кількість
твердого палива, збільшується час роботи теплового агрегату на одній закладці.
Над камерою топки розташована конвекційна частина.
Встановлено горизонтальний багатоходовий теплообмінник, полиці якого
виготовлені із жаростійкої котлової сталі товщиною 5 мм. Такий конструктив
збільшує поверхню теплознімання, дозволяє уповільнити проходження газоподібних
продуктів згоряння, значно підвищуючи коефіцієнт корисної дії обладнання.
Котел на дровах для дому Витязь ЕКО обладнаний чавунними
колосниковими гратами сухого типу, які мають високу теплокорозійну стійкість.
Колосники з чавунного сплаву стійкі до процесів інтенсивного горіння твердого
палива, зберігають їхню початкову форму протягом тривалої експлуатації.
З тильного боку конструкції котла розташований борів. Через
нього димові гази йдуть у димар круглої конфігурації. Боров оснащений шибером
тяги топкових газів, який дозволяє змінювати інтенсивність видалення
газоподібних продуктів згоряння.
Основні переваги
- Забезпечує ефективне обігрів приміщень із ККД 82 %.
- Виготовлений із застосуванням котлової сталі товщиною 5 мм,
що дає можливість використовувати агрегат за умов високих температур протягом
тривалого часу.
- Компактні розміри за наявності об'ємної камери згоряння.
- Має збільшену площу теплообміну.
- Зручне та просте обслуговування.
- Енергонезалежність.
- Бюджетна вартість.
- Твердопаливні котли Витязь ЕКО – це надійність, безпека та
довговічність під час експлуатації.

















