Твердопаливний котел Альтеп Класік Плюс 24 кВт
-
55 000 грн.
- 64 706 грн.
- Залишилося 12 днів
Твердопаливний котел Альтеп Класік Плюс 24 кВт: потужність для великих площ
Для опалення просторих приватних будинків, котеджів, офісних приміщень або невеликих складів площею до 240 м² потрібне обладнання з високим запасом міцності. Твердопаливний котел Альтеп моделі Classic Plus 24 кВт — це агрегат промислового класу надійності, адаптований для побутового використання. Завдяки збільшеній камері згоряння та ефективному теплообміннику, ця модель гарантує тривалу роботу на одному завантаженні, зменшуючи ваші витрати часу та коштів. Якщо ви вирішили купити котел Альтеп, ви обираєте стабільність та комфорт незалежно від погоди за вікном.
Конструкція та енергоефективність Altep Classic
Основою довговічності цього котла є матеріал. Корпус зварений із спеціальної котлової сталі завтовшки 5 мм. Використання роботизованого зварювання забезпечує ідеальну герметичність швів. Весь корпус має подвійні стінки («водяна сорочка»), що дозволяє ефективно знімати тепло з усіх боків топки.
Чому ККД котла перевищує 86%:
- Триходовий теплообмінник. Димові гази не вилітають у трубу відразу. Вони проходять через три горизонтальні водонаповнені полиці над топкою. Ця конструкція максимально забирає тепло від диму та передає його воді в системі опалення.
- Верхній димоход. Важлива особливість моделі: вихід димоходу спрямований вгору. Це суттєво економить місце в котельні та спрощує підключення до димохідної системи, покращуючи тягу.
- Утеплення. Корпус ізольований шаром мінеральної вати під декоративним кожухом, що мінімізує тепловтрати в навколишнє середовище.
Автоматизація та зручність ("Плюс" у деталях)
Модель Classic Plus постачається з повним комплектом автоматики: PID-контролером та нагнітальним вентилятором. Це звільняє користувача від необхідності постійно стежити за заслінками. Електроніка автоматично регулює подачу повітря через багаторівневі форсунки, підтримуючи задану температуру теплоносія. Це дозволяє ефективно спалювати навіть низькоякісне паливо.
Безпека та захист від прогорання
Виробник посилив найважливіші вузли котла:
- Водоомивні колосники. Замість чавунних решіток тут встановлені товстостінні безшовні труби (діаметр 42 мм, стінка 6 мм), по яких циркулює вода. Це дає додатковий зйом тепла і гарантує, що колосники не прогорять від високої температури вугілля.
- Захищені двері. Завантажувальні та ревізійні дверцята мають товщину 70 мм. Всередині вони оснащені жаростійкою цеглою (шамотом) та керамічним ущільнювачем. Це забезпечує герметичність (дим не потрапляє в кімнату) та безпеку (зовнішня поверхня дверей не перегрівається).
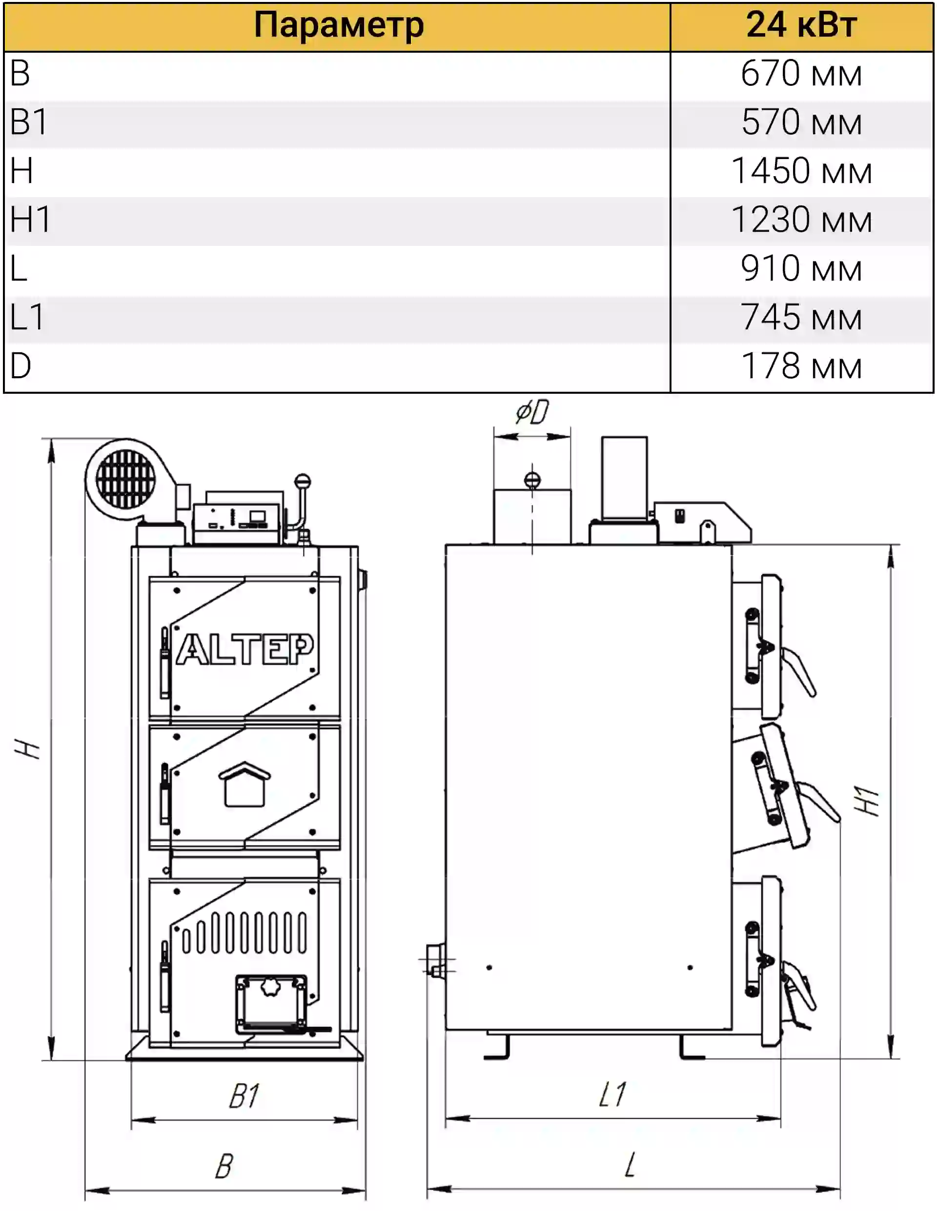
Основні характеристики Альтеп Класік Плюс 24
| Параметр | Опис переваги |
| Потужність 24 кВт | Оптимально для площі 200–240 м². |
| Товщина сталі 5 мм | Гарантія довговічності (термін служби 15+ років). |
| Керування | Електронний блок + турбіна (в комплекті). |
| Розташування димоходу | Верхнє (компактність монтажу). |
| Колосники | Охолоджувані водою (стінка труби 6 мм). |
Твердопаливний котел Альтеп 24 кВт — це інвестиція в енергонезалежність, яка окупається завдяки економії палива та надійності конструкції.








